隈町 店舗
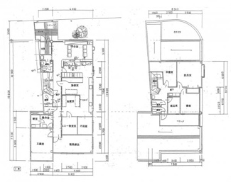
隈町の山下クリニックさんの跡地です。
ご不明な点がございましたらお気軽にお問い合わせください。
ローンシミュレーションこの物件を購入した場合の、月々の支払い価格の一例です。借り入れを保証するものではございません。
- 返済期間
-
- 金利
-
- ボーナス時の増額(1回分)
-
- 借入金額:
-
- 頭金:
-

- 毎月の返済額:
(※元利均等方式 金利5.00%まで ※返済年数5~50年まで入力できます)
(※ボーナスは年2回で計算しています。1000万円まで入力できます)
(※物件購入時、その他諸費用が発生する場合がございます)
担当者のコメント 河野友希

- 駅徒歩9分の物件です。5台以上駐車可能な物件です。駐輪場が付いているので、自転車とバイクを安心して置けます。購入価格1,700万円の物件です。
ポイント・特徴
物件概要
【店舗】 物件番号:70703716 情報更新日:2025年11月09日 次回更新予定日:2025年11月23日| 所在地 | 大分県日田市隈2丁目1-36 | ||
|---|---|---|---|
| 交通 | |||
| 坪数/面積/土地面積 | 64.40坪 / 212.92㎡ / 359.52㎡ | バルコニー面積 | - |
| 価格/坪単価 | 1,700万円 / 26.4万円 | 管理費 | - |
| 修繕積立金 | - | 駐車場/月額料金 | 有 / - |
| 土地権利 | 所有権 | 国土法届出要否 | 不要 |
| 用途地域 | 商業 | 地目/地勢 | 宅地 / 平坦 |
| 種別/構造 | 店舗 / 軽量鉄骨 | 向き | - |
| 築年月(築年数) | 1998年 2月 (築27年) | ||
| 所在階/階建 | - / 2階建 | 棟総戸数/販売戸数 | - / - |
| 管理組合有無 | - | 管理形態 | - |
| 管理員の勤務形態 | - | 管理会社 | - |
| 取引態様 | 専任媒介 | 現況/引渡し | 空家/即時 |
| 物件番号 | 70703716 | 取引条件の有効期限 | 2025年11月23日 |
| 設備条件 |
|
||
| 備考 |
■施工会社:大和ハウス工業株式会社 ■前テナント:クリニック |
||
| 取扱会社 |
|
||
※地図上に表示される物件の位置は付近住所に所在することを表すものであり、実際の物件所在地とは異なる場合がございます。














